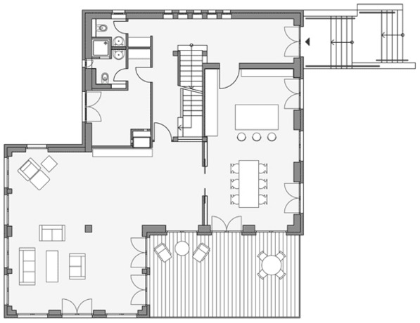
Grundriss

Info

Einfamilienhaus Düsseldorf

  • Umbau und Aufstockung
  • Wohnhaus am Rheindamm
  • Düsseldorf-Lohausen

2008

Bauherr Privat

Baubetreuung
K. Meier, Architektin