Info

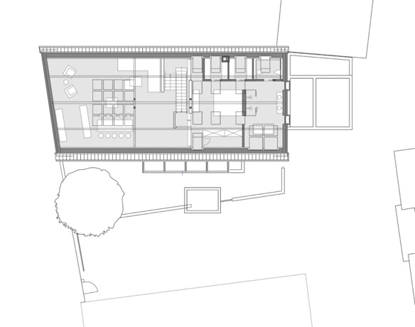
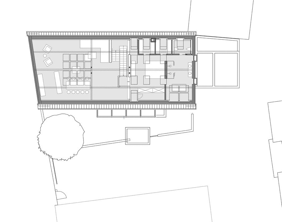
Einfamilienhaus Meerbusch

  • Umnutzung einer Scheune zum Wohnhaus
  • Meerbusch-Büderich

2010

Bauherr Privat

Baubetreuung
K. Meier, Architektin
K. Romich, Architektin