Info

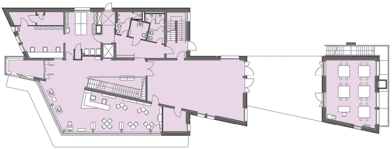
Stadtbibliothek Meerbusch

  • Neubau Stadtbibliothek
  • Meerbusch-Büderich

2010

Bauherr Stadt Meerbusch

Entwurf
Hochbauamt Stadt Meerbusch
Baubetreuung
M. Dzik, Architekt
D. Schertges, Architekt