Info

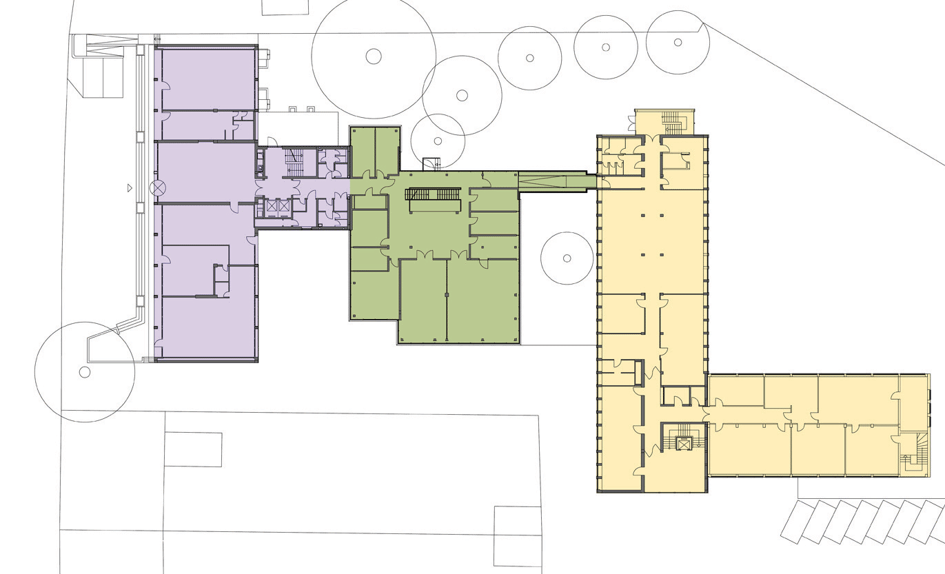
Verwaltungsgebäude RGUVV Düsseldorf

  • Neubau Bürogebäude, Umbau Bestandsgebäude und Neugestaltung Außenanlagen
  • Düsseldorf-Gerresheim

2005

Bauherr RGUVV – Rheinischer Gemeindeunfall­versicherungsverband

Neubau des Bürogebäudes in Arbeitsgemeinschaft mit
U. Ringleben, Architektin Düsseldorf
Baubetreuung
J. Balkow, Architekt
A. Gerritz , Architektin
D. Schertges, Architekt