Info

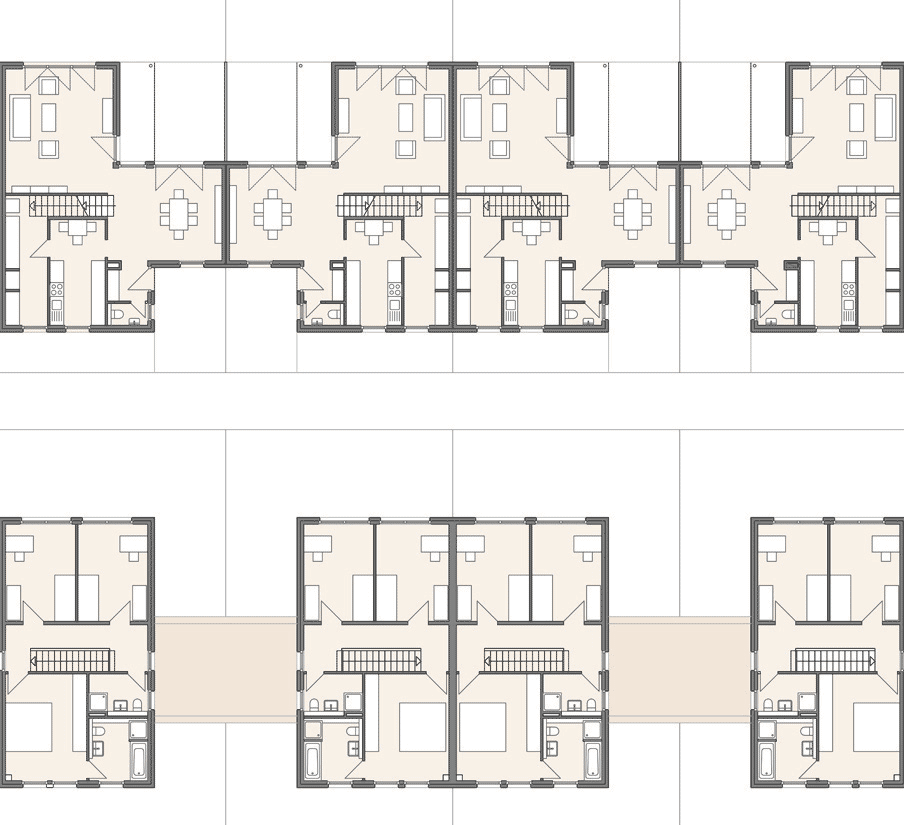
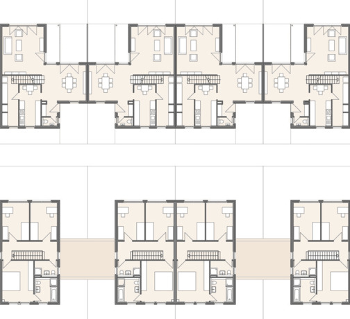
Wohnbebauung Düsseldorf

  • Wohnquartier Sturmstraße
  • Düsseldorf-Eller

2001

Bauherr Mettmanner Bauverein

Entwurfsbetreuung / Mitwirkung
H. Strubl, Architekt