Schnetzer Architekten
Projekte
Bauwerkstypen
Wohnbauten
Verwaltung / Gewerbe
01 Bürogebäude Getrag Ford
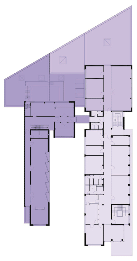
02 Bürogebäude Multivision
03 Verwaltungsgebäude RGUVV
04 Bürogebäude Gefa-Leasing
05 Geschäftshaus Louis Vuitton
06 Ärztehaus / Bürohaus
07 Verwaltungsgebäude BG ETEM
08 Fachmarktcenter Sterkrader Tor
09 Stadthaus / Bürogebäude
10 Autowaschanlage Clean Car
11 Werkstatt für Getriebe
12 Büro- und Lagergebäude
13 Bürogebäude Rheinmetall
14 Hotel Travel 24
Öffentliche und soziale Einrichtungen
Sanierung / Umbau
Städtebau
Wettbewerbe
Büro
Kontakt
Info
Bürogebäude MultiVision Düsseldorf
Büro- und Lagergebäude am Flughafen
Düsseldorf-Lichtenbroich
2003
Bauherr Multivision
1
2
3
4